Home › Unlabelled ›
Contemporary One Story House Plans / One Story One Level House Plans Blueprints / The exterior of these modern house plans could include odd shapes and angles, and even a flat roof.
Contemporary One Story House Plans / One Story One Level House Plans Blueprints / The exterior of these modern house plans could include odd shapes and angles, and even a flat roof.. Young families will appreciate the lack of stairs when chasing after kids. Popular with folks who have (or will have) trouble with stairs. There are many advantages to 1.5 story homes. Rather, with the wide variety of single story house plans that utilize creative. One level / single story house plans.
While a contemporary house plan can present modern architecture, the term contemporary house plans is not synonymous with modern house plans. Choose from various styles and easily modify your floor plan. Find small 1 story shed roof lake home designs, modern open layout mansions & more! The one story house plan is a fashionable, timeless style that has emerged as a favorite with a growing number of americans. Monsterhouseplans.com offers 29,000 house plans from top designers.
Pin On House Gate Design from i.pinimg.com Popular with folks who have (or will have) trouble with stairs. House designs and house plans philippines. They are generally well suited to larger lots, where economy of land space needn't be a top priority. Looking for a small house plan that you can build on your small home lot? Older owners can age in place with greater accessibility. Young families will appreciate the lack of stairs when chasing after kids. The one story house plan is a fashionable, timeless style that has emerged as a favorite with a growing number of americans. One story house plans are great for new families or empty nesters.
One story house plan 13x12m with 2 bedrooms.
Young families will appreciate the lack of stairs when chasing after kids. Looking for a small house plan that you can build on your small home lot? 1 story house plans available in a wide variety of architectural styles and sizes from associated designs. These houses have larger living areas with vaulted ceilings and an open feel. This collection of his best one story home plans should not be missed if you want the. Browse through amazing photos, beautiful renderings, video tours and even a few 3d virtual tours of these incredible 1 story house plans. House plans on a single level, one story, in styles such as craftsman, contemporary, and modern farmhouse. Dream 1 story house plans & designs for 2021. Contemporary house plans can be extremely varied, possibly unique, and no single common design theme binds them as a style. Our collection of 1 story home plans are designed to take advantage of wasted space and maximize your views from within the homes. There are many advantages to 1.5 story homes. One story house plans are striking in their variety. Find small 1 story shed roof lake home designs, modern open layout mansions & more!
Popular with folks who have (or will have) trouble with stairs. We have plans ranging from modest to sprawling, simple to sophisticated, and they come in all architectural styles. Quality one level and single story home you should never feel you are being limited by a one story house plan; One level / single story house plans. Young families will appreciate the lack of stairs when chasing after kids.
Contemporary One Story House Plans Awesome Modern Single House Plans 163341 from cdn.jhmrad.com The exterior of these modern house plans could include odd shapes and angles, and even a flat roof. Popular with folks who have (or will have) trouble with stairs. Find small 1 story shed roof lake home designs, modern open layout mansions & more! Looking for a small house plan that you can build on your small home lot? Young families will appreciate the lack of stairs when chasing after kids. And cozy cottages make for affordable vacation retreats. Large single story floor plans offer space for families and entertainment; Single story floor plans tend to be very space efficient because the main level of a house is usually a little bit more expensive to build (per square foot) than an upper level.
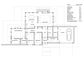
See photos, specifications and full color single story floor plan designs.
Most contemporary and modern house plans have a noticeable absence of historical style. Contemporary house plans frequently have large expanses of windows & often may have dramatic rooflines. Contemporary house plans are known for their unique architecture. Unfold the features and interior layout of this lovely one story contemporary house plan with roof deck. One story house plans are striking in their variety. Quality one level and single story home you should never feel you are being limited by a one story house plan; One story house plan 13x12m with 2 bedrooms. About contemporary house plans & contemporary home floor plans. A back porch off the great room and master suite ensures that leisure. Here are 40 house designs that you may consider from kerala home designz. 1 1/2 stories are the same height as 2 stories but one and a half stories only have rooms in part of the. The best contemporary house floor plans. One story house plans are great for new families or empty nesters.
One story house plans are striking in their variety. A back porch off the great room and master suite ensures that leisure. One level / single story house plans. Some waterfront designs, modern home plans. One story house plan 13x12m with 2 bedrooms.
House Plan 82559 Prairie Style With 2344 Sq Ft 3 Bed 2 Bath 1 Half Bath from images.familyhomeplans.com Common characteristics of one story house plans: For added versatility, look for 1 story house plans with bonus space (usually above the garage) that can be finished later to add an extra room without eating into lot space. Young families will appreciate the lack of stairs when chasing after kids. Many one story designs have split master bedrooms suites offering privacy and comfort. A couple of common characteristics are vaulted ceilings and clerestory windows on the roof. 1 1/2 stories are the same height as 2 stories but one and a half stories only have rooms in part of the. Contemporary house plans are known for their unique architecture. Choose from various styles and easily modify your floor plan.
For added versatility, look for 1 story house plans with bonus space (usually above the garage) that can be finished later to add an extra room without eating into lot space.
Our collection of 1 story home plans are designed to take advantage of wasted space and maximize your views from within the homes. The best contemporary house floor plans. One story house plan 13x12m with 2 bedrooms. They are generally well suited to larger lots, where economy of land space needn't be a top priority. About contemporary house plans & contemporary home floor plans. 1 story house plans available in a wide variety of architectural styles and sizes from associated designs. Unfold the features and interior layout of this lovely one story contemporary house plan with roof deck. Large single story floor plans offer space for families and entertainment; A couple of common characteristics are vaulted ceilings and clerestory windows on the roof. Most contemporary and modern house plans have a noticeable absence of historical style. 1 story home floor plans collection. Here are 40 house designs that you may consider from kerala home designz. Browse through amazing photos, beautiful renderings, video tours and even a few 3d virtual tours of these incredible 1 story house plans.